Nhà Thắng là một trong loạt công trình “Nhà cho cây xanh” của kiến trúc sư Võ Trọng Nghĩa với mong muốn đưa thiên nhiên vào trong môi trường sống đô thị chật hẹp.
===>> Để được tư vấn tốt hơn về sản phẩm, giả cả và các chương trình khuyến mãi:
Liên hệ Chuyên viên kinh doanh sơn dành cho khách hàng dự án: 0933 39 6622
Liên hệ tư vấn báo giá Kinh doanh sơn khách công trình nhà dân (trên 5 thùng): 0933 39 6622
Liên hệ tư vấn báo giá Kinh doanh sơn khách lẻ (dưới 5 thùng): 09688.433.90
| Hình thành từ các “khối hộp” bằng đá và gạch xếp chồng lên nhau quanh khoảng sân xanh mát, Nhà Thắng là công trình mới nhất trong chuỗi dự án Nhà cho cây xanh của KTS Võ Trọng Nghĩa trong nỗ lực đưa cư dân đô thị đến gần hơn với thiên nhiên. |
| Nhà Thắng cam kết góp phần phủ xanh cảnh quan đô thị và cải thiện môi trường sống bằng cách mang tới kiến trúc bền vững, thân thiện với môi trường. Hướng tới lối sống tự cung tự cấp, ngôi nhà được trang bị các tấm pin mặt trời cung cấp năng lượng cho các thiết bị điện, hệ thống tái chế nước tự động luân chuyển nước từ ao cá sang các khu vực có cây xanh. |
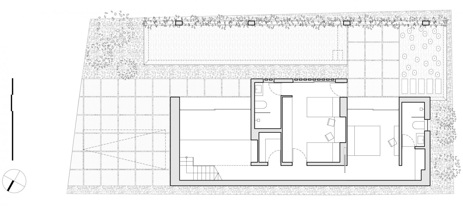
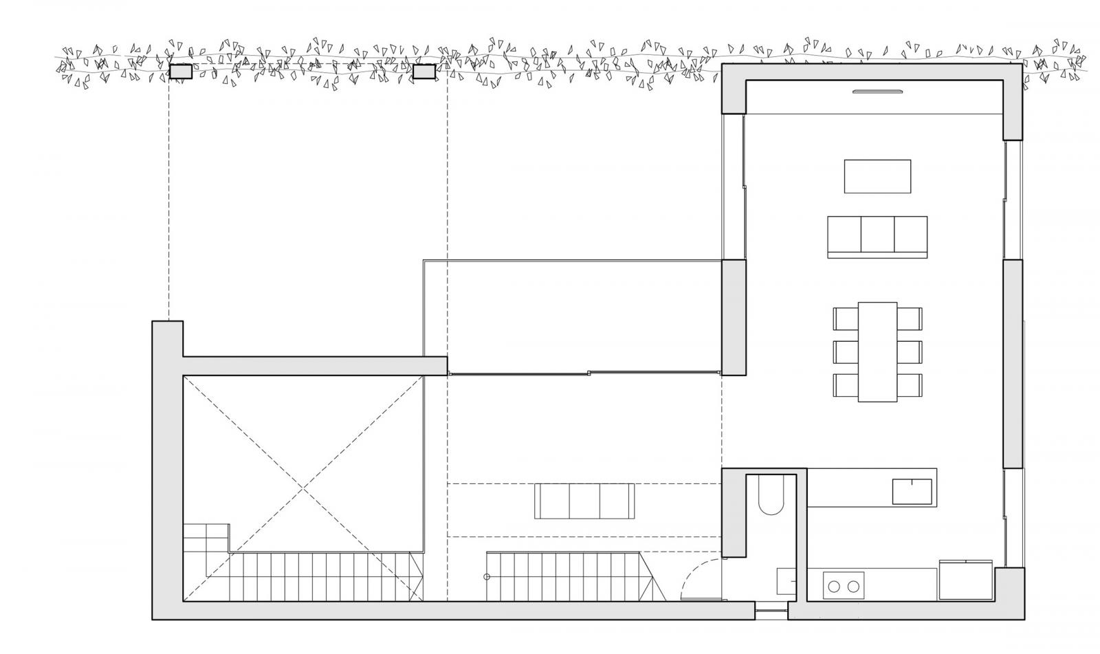
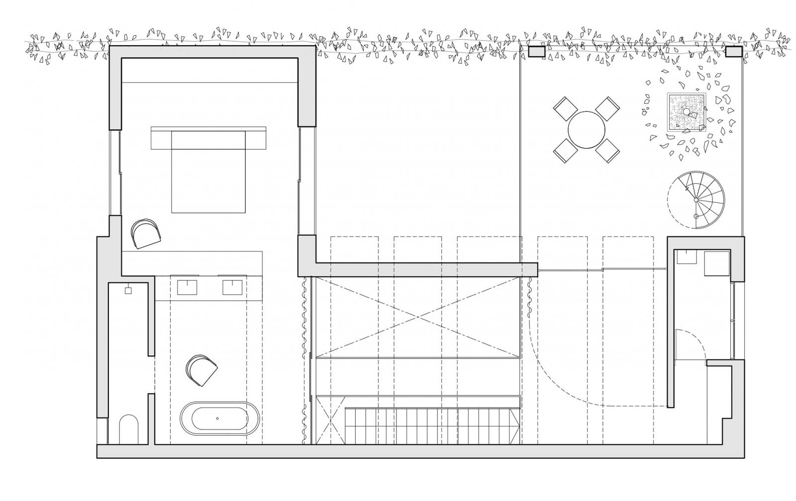
| Theo thiết kế, ngôi nhà gồm hai dải song song trên mảnh đất đô thị nhỏ, một bên là không gian sinh hoạt và bên còn lại là khu vườn được bao bọc bởi bức tường cao, trồng đầy cây xanh. |
| Bức tường phủ đầy cây xanh kéo dài lên đến tầng mái, ở đó có 9 hộp trồng cây bằng bê tông nằm song song nhau. Khoảng xanh bị mất đi do quá trình xây dựng đã được bù đắp bằng vườn cây ăn trái trên sân thượng, nơi đón nhận được tối đa ánh sáng mặt trời. Cây xanh ở đây còn có tác dụng che mát cho mái nhà. |
| Các khoảng mở và ban công ở khu vực sinh hoạt đều hướng ra khu vực cây xanh, hồ cá. Những khu vực này có nhiệm vụ mang ánh sáng tự nhiên, không khí trong lành và hương thơm cỏ cây vào trong từng góc nhỏ của ngôi nhà. |
Các khe hẹp trên mái bê tông đưa ánh sáng tự nhiên vào sâu bên dưới.
| Không gian sinh hoạt được chia thành 4 khối hộp (1 khối hộp to và 3 khối hộp nhỏ), tương ứng với khu vực sinh hoạt chung và các phòng ngủ. Tất cả được nâng đỡ bởi những cột bê tông mỏng bên dưới. Các ô cửa lớn không chỉ mang lại tầm nhìn cho các phòng mà còn cho phép không gian trong nhà kết nối liền mạch với bên ngoài. |
| Các tuyến đường lưu thông cắt ngang qua ngôi nhà như hòa trộn không gian bên trong và bên ngoài với nhau. |
| Chiếc hộp lớn ốp đá xám mang lại cảm giác về độ sâu và nét quyến rũ cho không gian sinh hoạt chung thì những khối hộp nhỏ ốp gạch trắng lại mang tới cảm giác ấm áp, tĩnh tại cho không gian sống. |
| Lối hoàn thiện nội thất cũng tạo nên tính liên tục giữa không gian bên trong và không gian bên ngoài. Sàn và tường bê tông thô tương phản với nội thất làm từ gỗ tối màu. |
Sơ đồ bố trí mặt bằng tầng 1.
Sơ đồ bố trí mặt bằng tầng 2.

Sơ đồ bố trí mặt bằng tầng 3.
Sơ đồ bố trí mặt bằng tầng mái.
Mặt cắt nhà.
Minh Châu (dịch từ Designboom)
===>> Để được tư vấn tốt hơn về sản phẩm, giả cả và các chương trình khuyến mãi:
Liên hệ Chuyên viên kinh doanh sơn dành cho khách hàng dự án: 0933 39 6622
Liên hệ tư vấn báo giá Kinh doanh sơn khách công trình nhà dân (trên 5 thùng): 0933 39 6622
Liên hệ tư vấn báo giá Kinh doanh sơn khách lẻ (dưới 5 thùng): 09688.433.90
CÔNG TY TNHH XDTM VÀ DV QT VIỆT NAM
Doithoson.com – Nơi tìm kiếm thợ sơn chuyên nghiệp
Chuyên phân phối hệ thống sản phẩm sơn cho các công trình Dự án An Ninh Quốc phòng, Trường học, Bệnh viện, Nhà xưởng và hệ thống Đại lý, Nhà thầu thi công tại khu vực Miền Bắc.
Địa chỉ: Số 8 – Ngách 122/10/10 Phố Vĩnh Tuy – P. Vĩnh Tuy – Q. Hai Bà Trưng – Hà Nội
Số điện thoại/Fax: 04 66 51 55 86 Hotline: 0933 33 6622
Email: qtvietnam11@gmail.com – jotonmienbac@gmail.com
Website: www.qtvietnam.com.vn – www.jotonmienbac.com – www.sonduluxduan.com – www.nipponmienbac.com
www.phanphoichinhhang.com – www.doithoson.com










