Ngôi nhà Đà Nẵng ấn tượng với kiến trúc như thành cổ

  • Thông tin chung

    Thiết kế 3 mặt đều là mái vòm hình tròn khiến ngôi nhà ở Đà Nẵng trông như một thành cổ trầm mặc, nổi bật giữa các căn nhà phố thông thường.

Thiết kế 3 mặt đều là mái vòm hình tròn khiến ngôi nhà ở Đà Nẵng trông như một thành cổ trầm mặc, nổi bật giữa các căn nhà phố thông thường.

20190409150502-9f5d

==> Tham khảo Bảng giá sơn  mới nhất

===>> Để được tư vấn tốt hơn về sản phẩm, giả cả và các chương trình khuyến mãi:

Liên hệ Chuyên viên kinh doanh sơn dành cho khách hàng dự án:  0933 39 6622 

Liên hệ tư vấn báo giá Kinh doanh sơn khách công trình nhà dân (trên 5 thùng):  0933 39 6622

Liên hệ tư vấn báo giá Kinh doanh sơn khách lẻ (dưới 5 thùng): 09688.433.90

Ngôi nhà là sự kết hợp khéo léo giữa nơi ở và kinh doanh quán cà phê của một gia đình gồm 4 người
(bố mẹ và hai con nhỏ). Công trình vừa mới được hoàn thành trong năm 2019, trên mảnh đất rộng
gần 300m2 ở Hòa Xuân, Cẩm Lệ, Đà Nẵng.

 20190409150507-2c44

ngôi nhà đà nẵng ấn tượng với kiến trúc như thành cổ

ngôi nhà đà nẵng ấn tượng với kiến trúc như thành cổ

Ngôi nhà được thiết kế như ba khối hộp đặt trên khối đế hình chữ nhật. Hình ảnh chiếc đồng hồ treo tường
chính là nguồn cảm hứng để các kiến trúc sư của Tropical Space thiết kế nên công trình ấn tượng này.

20190409150511-c7f0ngôi nhà đà nẵng ấn tượng với kiến trúc như thành cổ 

Ngôi nhà mang đến cho người ở cảm giác ấm áp, gần gũi với vật liệu gạch nung miền Trung
bao trùm toàn cả ngoại thất lẫn nội thất

20190409150515-2118ngôi nhà đà nẵng ấn tượng với kiến trúc như thành cổ 

Cảm giác lãng mạn, cổ điển của công trình càng được tăng lên nhờ thiết lế khung cửa vòm cầu kỳ

20190409150519-4749ngôi nhà đà nẵng ấn tượng với kiến trúc như thành cổ 

Quán cà phê được bố trí ở khối đế với không gian sân vườn thoáng đãng

 20190409150523-e4edngôi nhà đà nẵng ấn tượng với kiến trúc như thành cổ 

Một phần không gian bên trong nhà cũng được dành cho công việc kinh doanh

20190409150528-f93angôi nhà đà nẵng ấn tượng với kiến trúc như thành cổ 

Không gian sinh hoạt của gia đình được bố trí ở ba khối hộp bên trên

20190409150531-d049ngôi nhà đà nẵng ấn tượng với kiến trúc như thành cổ 

Các không gian đệm với mái che tạo sự kết nối giữa các tầng với nhau

 20190409150534-5f20ngôi nhà đà nẵng ấn tượng với kiến trúc như thành cổ

Không gian đệm được các kiến trúc sư tận dụng triệt để, giúp mở rộng không gian sinh hoạt chung
của gia đình nhỏ

20190409150537-81c5ngôi nhà đà nẵng ấn tượng với kiến trúc như thành cổ 

Các không gian đệm còn có chức năng đưa gió vào từng ngóc ngách của ngôi nhà,
giúp không gian luôn thoáng đãng

20190409150542-b08dngôi nhà đà nẵng ấn tượng với kiến trúc như thành cổ 

Khối C được thiết kế 1 tầng với chức năng làm bếp và phòng ăn. Khối B và A đều thiết kế 2 tầng,
trong đó, phòng của hai con được bố trí ở tầng trên của khối B, còn không gian sinh hoạt
gia đình được đặt ở tầng dưới.

20190409150546-87b8ngôi nhà đà nẵng ấn tượng với kiến trúc như thành cổ 

Khối A được dành riêng cho bố mẹ với phòng ngủ đặt ở tầng trên, tầng dưới bố trí phòng tắm,
toilet và tủ quần áo

 20190409150551-1e52ngôi nhà đà nẵng ấn tượng với kiến trúc như thành cổ 

Bản thiết kế và bố trí mặt bằng tầng trệt của ngôi nhà Đà Nẵng

20190409150555-cbeengôi nhà đà nẵng ấn tượng với kiến trúc như thành cổ 

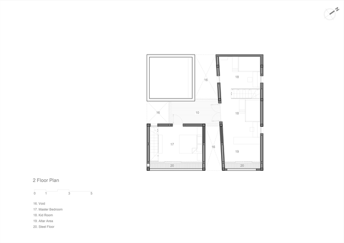
Bản thiết kế và bố trí mặt bằng tầng lầu

20190409150603-b4ce 
Bản thiết kế và bố trí mặt bằng tầng áp mái

 

===>> Để được tư vấn tốt hơn về sản phẩm, giả cả và các chương trình khuyến mãi:

Liên hệ Chuyên viên kinh doanh sơn dành cho khách hàng dự án:  0933 39 6622 

Liên hệ tư vấn báo giá Kinh doanh sơn khách công trình nhà dân (trên 5 thùng):  0933 39 6622

Liên hệ tư vấn báo giá Kinh doanh sơn khách lẻ (dưới 5 thùng): 09688.433.90

CÔNG TY TNHH XDTM VÀ DV QT VIỆT NAM

Doithoson.com – Nơi tìm kiếm thợ sơn chuyên nghiệp

Chuyên phân phối hệ thống sản phẩm sơn KOVA, JOTON, JOTUN, DULUX, NIPPON cho các công trình Dự án An Ninh Quốc phòng, Trường học, Bệnh viện, Nhà xưởng và hệ thống Đại lý, Nhà thầu thi công tại khu vực Miền Bắc.

Địa chỉ: Số 8 – Ngách 122/10/10 Phố Vĩnh Tuy – P. Vĩnh Tuy – Q. Hai Bà Trưng – Hà Nội
Số điện thoại/Fax: 04 66 51 55 86   Hotline: 0933 33 6622

Email: qtvietnam11@gmail.com – jotonmienbac@gmail.com

Website: www.qtvietnam.com.vn – www.jotonmienbac.com – www.sonduluxduan.com – www.nipponmienbac.com

www.phanphoichinhhang.com – www.doithoson.com

Bài viết Liên Quan